Tapahtumat

Kun kirjaudut sisään näet tässä ilmoitukset sinua kiinnostavista asioista.

Kirjaudu sisään

Ideoita mökkikeittiön sijoitteluun

Vierailija
19.07.2023 |

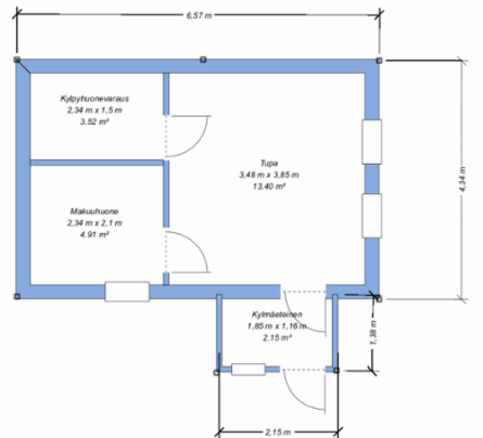
Pohja mökissä on nyt suunnilleen tämän oloinen (sorry ihan tarkkaa vastaavaa en löytänyt, pikkuisen vaaditaan mielikuvitusta). https://asiakas.kotisivukone.com/files/hirnu.kotisivukone.com/2021/Mini…

Sisälle tullaan tuosta alemman makkarin vierestä, eli ei ole mitään kuisteja. Makkarien seinä tuvan puolella on muuri ja siinä on pieni porinmatti tulisija. Tupa on ehkä pikkuisen isompi, kooltaan noin parikymmentä neliötä.
Tässä vähän samaa henkeä myös, ilman tuota pkh-osiota ja makkarit pienempiä. Käynti toiseen makkariin tuon "naulakon" kohdalta. https://www.karvianhirsirakentajat.fi/wp-content/uploads/2016/06/Pohjap…

Molemmat kamarit halutaan säilyttää makuutilana, niihin ei siis keittiötä laiteta. Ehkä jonkinlainen saareke/niemekeratkaisu tuohon ylemmän makkarin käynnin eteen? Eihän se ideaali ole mutta tilaa ei ole paljon. Juoksevaa vettä ei ole eikä toistaiseksi sähköäkään. Kaasuhella + kaasujääkaappi.

Kommentit (31)

Vierailija
1/31 |
19.07.2023 |
Näytä aiemmat lainaukset

Aika paha, varmaan tuo oikea nurkka tuvassa tai sitten ikkunoiden eteen....

Vierailija
2/31 |
19.07.2023 |
Näytä aiemmat lainaukset

No, minneköhän sen keittiön voisi sijoittaa?🤔. Varmaan kuusenoksa oikea paikka tai sitten naapurin pihalle.

Sisältö jatkuu mainoksen alla
Sisältö jatkuu mainoksen alla
Vierailija
3/31 |
19.07.2023 |
Näytä aiemmat lainaukset

Vierailija kirjoitti:

Aika paha, varmaan tuo oikea nurkka tuvassa tai sitten ikkunoiden eteen....

Ai niin ikkunat. Tuvassa on oikeasti iso ikkuna oikeassa alanurkassa suunnilleen kuten jälkimmäisessä pohjapiirroksessa plus pieni korkealle sijoitettu ja seinän vasemmalle laidalle sijoitettu ns saunanikkunamallinen oikealla päätyseinällä. Ei ole siis tuollaista kahta isoa ikkunaa kuin kuvassa. Ap

Vierailija
4/31 |
19.07.2023 |
Näytä aiemmat lainaukset

^

Vierailija
5/31 |
19.07.2023 |
Näytä aiemmat lainaukset

^

Vierailija
6/31 |
19.07.2023 |
Näytä aiemmat lainaukset

^

Sisältö jatkuu mainoksen alla
Vierailija
7/31 |
19.07.2023 |
Näytä aiemmat lainaukset

Riippuu nyt ihan siitä mitä toiveita tällä on ja missä on esimerkiksi maisema mutta muutama ajatus.

Jos ruoka syödään ja pääasiassa valmistetaan ulkona, niin keittiö on järkevää sijoittaa lähelle ulko-ovea. Silloin sieltä saa nopeasti noudettua astiat ja ruuat ilman, että koko tupa sotkeentuu, kun rampotaan edes takas.

Pohjakuvien perusteella helpoin ratkaisu olisi laittaa keittiö mökin takaseinälle. Siinä tosin kaikki lika kulkeutuu ihan mökin perälle asti. Toki riippuu mökin pihasta millaista rojua sinne mahdollisesti jalkapohjissa/kengissä kulkeutuisi.

Vierailija
8/31 |
19.07.2023 |
Näytä aiemmat lainaukset

Vierailija kirjoitti:

Riippuu nyt ihan siitä mitä toiveita tällä on ja missä on esimerkiksi maisema mutta muutama ajatus.

Jos ruoka syödään ja pääasiassa valmistetaan ulkona, niin keittiö on järkevää sijoittaa lähelle ulko-ovea. Silloin sieltä saa nopeasti noudettua astiat ja ruuat ilman, että koko tupa sotkeentuu, kun rampotaan edes takas.

Pohjakuvien perusteella helpoin ratkaisu olisi laittaa keittiö mökin takaseinälle. Siinä tosin kaikki lika kulkeutuu ihan mökin perälle asti. Toki riippuu mökin pihasta millaista rojua sinne mahdollisesti jalkapohjissa/kengissä kulkeutuisi.

Varmaan pääasiassa grillissä ulkona tulee tehtyä ruoka, mutta toki välillä sisälläkin. Toki ruuanvalmisteluun varmaan tulee käytettyä sisäkeittiötä. Niin kuin nyt perus mökeillä toimitaan.

Yksi mitä olen ajatellut on sijoittaa keittiö tuon tulisijaseinän läheisyyteen, aika lähelle ulko-ovea. Esim saareke vastapäätä tuota muuria suunnilleen saman levyisenä MUTTA nuo kaasulla toimivat laitteet tulisijan lähellä epäilyttävät. Eipä ne kaukana ole tuossa ensimmäisessäkään vaihtoehdossa jota pohdin.

Sisältö jatkuu mainoksen alla
Vierailija
9/31 |
19.07.2023 |
Näytä aiemmat lainaukset

Samaan kohtaan kuin linkin nro 2 kuvassa on, koko seinä hyödyntäen.

Vierailija
10/31 |
19.07.2023 |
Näytä aiemmat lainaukset

Vierailija kirjoitti:

Vierailija kirjoitti:

Riippuu nyt ihan siitä mitä toiveita tällä on ja missä on esimerkiksi maisema mutta muutama ajatus.

Jos ruoka syödään ja pääasiassa valmistetaan ulkona, niin keittiö on järkevää sijoittaa lähelle ulko-ovea. Silloin sieltä saa nopeasti noudettua astiat ja ruuat ilman, että koko tupa sotkeentuu, kun rampotaan edes takas.

Pohjakuvien perusteella helpoin ratkaisu olisi laittaa keittiö mökin takaseinälle. Siinä tosin kaikki lika kulkeutuu ihan mökin perälle asti. Toki riippuu mökin pihasta millaista rojua sinne mahdollisesti jalkapohjissa/kengissä kulkeutuisi.

Varmaan pääasiassa grillissä ulkona tulee tehtyä ruoka, mutta toki välillä sisälläkin. Toki ruuanvalmisteluun varmaan tulee käytettyä sisäkeittiötä. Niin kuin nyt perus mökeillä toimitaan.

Yksi mitä olen ajatellut on sijoittaa keittiö tuon tulisijaseinän läheisyyteen, aika lähelle ulko-ovea. Esim saareke vastapäätä tuota muuria suunnilleen saman levyisenä MUTTA nuo kaasulla toimivat laitteet tulisijan lähellä epäilyttävät. Eipä ne kaukana ole tuossa ensimmäisessäkään vaihtoehdossa jota pohdin.

Kannattaa huomioida, että saareke vie paljon tilaa ja voi tukkia koko mökin tuvan. Ehkä joku pyörillä liikkuva voisi toimia, jolloin sen saisi tarvittaessa vaikka ikkunan eteen.

Mitä muuta tupaan tulisi kuin keittiö? Ruokailuryhmä, oleskelupaikka?

Sisältö jatkuu mainoksen alla
Vierailija
11/31 |
19.07.2023 |
Näytä aiemmat lainaukset

Vierailija kirjoitti:

Samaan kohtaan kuin linkin nro 2 kuvassa on, koko seinä hyödyntäen.

Ja pyöreä pöytäryhmä keittiön eteen (4hlö:n) ja kulmasohva ikkunoiden alle (piirustuksessa alanurkan kohta, vähän vaikee selittää).

Vierailija
12/31 |
19.07.2023 |
Näytä aiemmat lainaukset

Vierailija kirjoitti:

Vierailija kirjoitti:

Vierailija kirjoitti:

Riippuu nyt ihan siitä mitä toiveita tällä on ja missä on esimerkiksi maisema mutta muutama ajatus.

Jos ruoka syödään ja pääasiassa valmistetaan ulkona, niin keittiö on järkevää sijoittaa lähelle ulko-ovea. Silloin sieltä saa nopeasti noudettua astiat ja ruuat ilman, että koko tupa sotkeentuu, kun rampotaan edes takas.

Pohjakuvien perusteella helpoin ratkaisu olisi laittaa keittiö mökin takaseinälle. Siinä tosin kaikki lika kulkeutuu ihan mökin perälle asti. Toki riippuu mökin pihasta millaista rojua sinne mahdollisesti jalkapohjissa/kengissä kulkeutuisi.

Varmaan pääasiassa grillissä ulkona tulee tehtyä ruoka, mutta toki välillä sisälläkin. Toki ruuanvalmisteluun varmaan tulee käytettyä sisäkeittiötä. Niin kuin nyt perus mökeillä toimitaan.

Yksi mitä olen ajatellut on sijoittaa keittiö tuon tulisijaseinän läheisyyteen, aika lähelle ulko-ovea. Esim saareke vastapäätä tuota muuria suunnilleen saman levyisenä MUTTA nuo kaasulla toimivat laitteet tulisijan lähellä epäilyttävät. Eipä ne kaukana ole tuossa ensimmäisessäkään vaihtoehdossa jota pohdin.

Kannattaa huomioida, että saareke vie paljon tilaa ja voi tukkia koko mökin tuvan. Ehkä joku pyörillä liikkuva voisi toimia, jolloin sen saisi tarvittaessa vaikka ikkunan eteen.

Mitä muuta tupaan tulisi kuin keittiö? Ruokailuryhmä, oleskelupaikka?

4hlö ruokapöytä, (kulma?)sohva ja sohvapöytä. Tosin tuota ruokapöytääkin mietin, ehkä voi keittiösaareketta/niemekettä hyödyntää ruokailutasona ja ulkona olisi ruokapöytä. Vähän isommalla oleskelutilalla ehkä enemmän käyttöä kuin ruokapöydällä.

Sisältö jatkuu mainoksen alla
Vierailija
13/31 |
19.07.2023 |
Näytä aiemmat lainaukset

Vierailija kirjoitti:

Samaan kohtaan kuin linkin nro 2 kuvassa on, koko seinä hyödyntäen.

Niin iso keittiö, koko seinän mittainen ei ole tarpeellinen. Lisäksi se hankaloittaisi muuta sisustamista aika paljon jos yksi seinä olisi kokonaan varattu keittiökaapistolle.

Vierailija
14/31 |
19.07.2023 |
Näytä aiemmat lainaukset

Vierailija kirjoitti:

Vierailija kirjoitti:

Samaan kohtaan kuin linkin nro 2 kuvassa on, koko seinä hyödyntäen.

Ja pyöreä pöytäryhmä keittiön eteen (4hlö:n) ja kulmasohva ikkunoiden alle (piirustuksessa alanurkan kohta, vähän vaikee selittää).

Mukavampi on katsella sohvalta ikkunasta ulkonäkymiä joten mieluummin kuitenkin ehkä sijoittaisin sohvan ja oleskelun oikeaan ylänurkkaan, rintamasuunta siten pääasiassa ikkunaan päin.

Sisältö jatkuu mainoksen alla
Vierailija
15/31 |
19.07.2023 |
Näytä aiemmat lainaukset

Vierailija kirjoitti:

Vierailija kirjoitti:

Vierailija kirjoitti:

Vierailija kirjoitti:

Riippuu nyt ihan siitä mitä toiveita tällä on ja missä on esimerkiksi maisema mutta muutama ajatus.

Jos ruoka syödään ja pääasiassa valmistetaan ulkona, niin keittiö on järkevää sijoittaa lähelle ulko-ovea. Silloin sieltä saa nopeasti noudettua astiat ja ruuat ilman, että koko tupa sotkeentuu, kun rampotaan edes takas.

Pohjakuvien perusteella helpoin ratkaisu olisi laittaa keittiö mökin takaseinälle. Siinä tosin kaikki lika kulkeutuu ihan mökin perälle asti. Toki riippuu mökin pihasta millaista rojua sinne mahdollisesti jalkapohjissa/kengissä kulkeutuisi.

Varmaan pääasiassa grillissä ulkona tulee tehtyä ruoka, mutta toki välillä sisälläkin. Toki ruuanvalmisteluun varmaan tulee käytettyä sisäkeittiötä. Niin kuin nyt perus mökeillä toimitaan.

Yksi mitä olen ajatellut on sijoittaa keittiö tuon tulisijaseinän läheisyyteen, aika lähelle ulko-ovea. Esim saareke vastapäätä tuota muuria suunnilleen saman levyisenä MUTTA nuo kaasulla toimivat laitteet tulisijan lähellä epäilyttävät. Eipä ne kaukana ole tuossa ensimmäisessäkään vaihtoehdossa jota pohdin.

Kannattaa huomioida, että saareke vie paljon tilaa ja voi tukkia koko mökin tuvan. Ehkä joku pyörillä liikkuva voisi toimia, jolloin sen saisi tarvittaessa vaikka ikkunan eteen.

Mitä muuta tupaan tulisi kuin keittiö? Ruokailuryhmä, oleskelupaikka?

4hlö ruokapöytä, (kulma?)sohva ja sohvapöytä. Tosin tuota ruokapöytääkin mietin, ehkä voi keittiösaareketta/niemekettä hyödyntää ruokailutasona ja ulkona olisi ruokapöytä. Vähän isommalla oleskelutilalla ehkä enemmän käyttöä kuin ruokapöydällä.

Kannattaa miettiä myös nuo asiat ennen keittiön sijainnista päättämistä.

Meillä mökillä ruokapöytä on sisälläkin paljon käytössä mutta sohvaa ei käytetä kuin ehkä päiväuniin. Pöydän ääressä syödään aamupala ja sateella pelataan lautapelejä/korttia. Kaikki oleskelu on käytännössä ulkona. Etenkin iltaisin, kun osa menee nukkumaan aiemmin.

Vierailija
16/31 |
19.07.2023 |
Näytä aiemmat lainaukset

Pitäisi tietää tilan mitat, mutta sanoisin, että mikään saarekeratkaisu ei tuollaiseen mahdu ja vain haittaa tilan käyttöä. Käytännössä ainoa toimiva ratkaisu on mahdollisimman kompakti keittiö takaseinällä sisäänkäyntiä vastapäätä, kuten jälkimmäisessä kuvassa.

Vierailija
17/31 |
19.07.2023 |
Näytä aiemmat lainaukset

Ulko-oven vastapäiselle seinälle. Jos ei halua keittiökaapistoa koko matkalle, niin voi siihen laittaa muutakin säilytystilaa esim. vaatteille.

Vierailija
18/31 |
19.07.2023 |
Näytä aiemmat lainaukset

Jos haluat sohvaa ja ruokailuryhmää, niin saareke ei kyllä mahdu sekaan. Se myös tukkii koko tilan visuaalisesti. Ruokailuryhmä on kätevämpi kuin sohva, sillä sitä voi hyödyntää ruuanlaitossa ja mukavilla tuoleilla se sopii myös oleskeluun.

Vierailija
19/31 |
19.07.2023 |
Näytä aiemmat lainaukset

Vierailija kirjoitti:

Pitäisi tietää tilan mitat, mutta sanoisin, että mikään saarekeratkaisu ei tuollaiseen mahdu ja vain haittaa tilan käyttöä. Käytännössä ainoa toimiva ratkaisu on mahdollisimman kompakti keittiö takaseinällä sisäänkäyntiä vastapäätä, kuten jälkimmäisessä kuvassa.

Mittoja ei ole nyt tähän hätään.

Vierailija
20/31 |
19.07.2023 |
Näytä aiemmat lainaukset

Porin matti on siinä makkareiden välissä, se vie jo syvyyssuunnassa huoneesta tilaa, ei todellakaan mitään saareketta tai niemekettä siihen.

Keittiö takaseinälle, siltä leveydeltä kuin on tarvetta. Samalla idealla kuin nykyään kerrostaloasunnot, yksi seinä keittiötä, loput olohuonetta. Tai siis tupahan siitä tulee, sinne mahtuu justiin yksi sohva, ruokaryhmä ja ehkä hylly vielä sohvan viereen.

Kannattaa hankkia sen verran isompi ruokapöytä, että sen ääressä voi istua iltaa, ja kunnon tuolit, ettei takapuoli puudu. Tuohon tilaan on turha yrittää mahduttaa kaikkea mahdollista, ei vaan mahdu. Sen saarekkeen/niemekkeen voi unohtaa ihan oikeasti, se tukkii koko tilan, takimmaista makuuhuonetta myöden!

Kannattaa miettiä, voisiko osan keittiön toiminnoista ja esimerkiksi ruokailutilan sijoittaa mökin ulkopuolelle katettuun tilaan. Talvellahan se ei toimi kovin hyvin, kun on kylmä, mutta ison osan vuotta siellä kyllä pärjää, jos se on tuulelta ja sateelta kunnolla suojattu, ei mitään riukuseiniä.

Kirjoita seuraavat numerot peräkkäin: kuusi kahdeksan kahdeksan