Tapahtumat

Kun kirjaudut sisään näet tässä ilmoitukset sinua kiinnostavista asioista.

Kirjaudu sisään
Tervetuloa lukemaan keskusteluja! Kommentointi on avoinna klo 7 - 23.
Tervetuloa lukemaan keskusteluja! Kommentointi on avoinna klo 7 - 23.

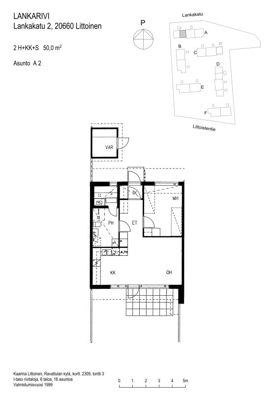
Miksi tämän kaltaisissa asunnoissa on noin vähän kaappitilaa?

Vierailija
09.10.2024 |

https://vaso-markkinointihaku.etampuuri.fi/Images/kohdekuvat/000036864…

Yksi ainoa pieni vaatekaappi makuuhuoneessa, mitä sinne mahtuu? Mihin ihmisen on tarkoitus laittaa vaatteensa, harrastusvälineet yms? Tuossakin kuitenkin yli 50 neliötä eli periaatteessa kahden ihmisen koti. ASO-maksu yli 30000.

Tässä toinen samanlainen mutta aika mielenkiintoisella makuuhuoneratkaisulla, 2 erillistä sänkyä :o Ja vielä pienempi vaatekaappi kuin tuossa edellisessä!

https://vaso-markkinointihaku.etampuuri.fi/Images/kohdekuvat/000037000…

Kommentit (7)

Vierailija
1/7 |
09.10.2024 |
Näytä aiemmat lainaukset

Hei katsokaas nyt! Tuosta olohuoneesta olisi hyvin saanut muutaman neliön vaatehuoneeksi, miksei ole laitettu?

Vierailija
2/7 |
09.10.2024 |
Näytä aiemmat lainaukset

Kai kotiinsa voi itse viedä kaappeja?

Sisältö jatkuu mainoksen alla
Sisältö jatkuu mainoksen alla
Vierailija
3/7 |
09.10.2024 |
Näytä aiemmat lainaukset

Onko niitä halpisrättejä tarkoitus/pakko  ostaa kaappitolkulla!

Vierailija
4/7 |
09.10.2024 |
Näytä aiemmat lainaukset

Vierailija kirjoitti:

Onko niitä halpisrättejä tarkoitus/pakko  ostaa kaappitolkulla!

No ei silti mahdu 2 ihmisen vaatteet tuollaiseen pieneen yhden hyllyn kaappiin, mitenkään! Nyt asun 60 neliössä ja mulla on seinällinen vaatekaappeja sekä keittiössä isot kaapit keittiölaitteille eikä kyllä yhtään liikaa.

Vierailija
5/7 |
09.10.2024 |
Näytä aiemmat lainaukset

Kyllä on tosiaan masentavan typerillä ratkaisuilla olevia vuokra-asuntojakin tarjolla, on jopa asuntoja joissa ei ole omaa suihkua vaan pitäisi jossain yhteissuihkutilassa käydä! Tuollaisia kehitysmaa-asuntoja ei pitäisi tänä päivänä enää edes olla!

Vierailija
6/7 |
09.10.2024 |
Näytä aiemmat lainaukset

Vierailija kirjoitti:

Kai kotiinsa voi itse viedä kaappeja?

Voi toki mutta yleensä asunnoissa on valmiiksi kohtuullinen varustelutaso.

Sisältö jatkuu mainoksen alla
Vierailija
7/7 |
09.10.2024 |
Näytä aiemmat lainaukset

Siksi koska niissä ei ole seiniä. On epämääräinen yhtenäinen eteinen/keittiö/olohuonetila jossa ei ole seiniä. Seinät jakavat tilan omiin toimintoihinsa ja niitä vasten voi laittaa säilytyskalusteita joka ei tietty ole mahdollista tuollaisessa seinäkeittiöpohjassa.