Tapahtumat

Kun kirjaudut sisään näet tässä ilmoitukset sinua kiinnostavista asioista.

Kirjaudu sisään

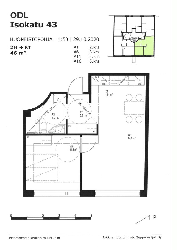
Eikös 25 neliön avokeittiö-olohuone ole ihan hyvän kokoinen 46 neliön kaksioon?

Vierailija
24.12.2022 |

Eikös 25 neliön avokeittiö-olohuone ole ihan hyvän kokoinen 46 neliön kaksioon? En tykkää avokeittiöistä enkä noin pienistä kaksioista, mutta eikö tuo kuulosta kuitenkin ihan tilavalta?

Kommentit (13)

Vierailija
1/13 |
24.12.2022 |
Näytä aiemmat lainaukset

Ei. 25 neliötä on pieni olohuone. Ei siihen saa keittiötä millään ympättyä niin, että olisi tilavaa.

Vierailija
2/13 |
24.12.2022 |
Näytä aiemmat lainaukset

25 neliötä on noin 5 metriä x 5 metriä, joten siihen pitäisi mahtua ruokapöytä neljällä tuolilla, kirjoituspöytä ikkunan eteen sekä ainakin kahdenistuttava sohva, josta voi katsoa televisiota. Yleensä puhutaan tupakeittiöstä, jolloin asunnossa ei ole ainakaan pientä erillistä keittokomeroa eikä muita turhia sokkeloita. Tupakeittiössä se sama pöytä toimii samalla olohuoneen ja keittiön pöytänä.

Sisältö jatkuu mainoksen alla
Sisältö jatkuu mainoksen alla
Vierailija
3/13 |
24.12.2022 |
Näytä aiemmat lainaukset

Meillä on juuri tuollainen aso-asunto, 46,5 neliötä. Olohuone on ihan riittävän tilava, mutta makuuhuone on niin pieni, että parisänky mahtuu juuri ja juuri. Tietysti jos ei ole saunaa, niin voi olla vähän tilavampi.

Mielestäni tällainen asunto ei ole kaksio, vaan 1 h + tupakeittiö. Käytännössä olohuoneessa on hella, jääkaappi ja keittiötasot yhdellä seinällä.

Vierailija
4/13 |
24.12.2022 |
Näytä aiemmat lainaukset

Vierailija kirjoitti:

Meillä on juuri tuollainen aso-asunto, 46,5 neliötä. Olohuone on ihan riittävän tilava, mutta makuuhuone on niin pieni, että parisänky mahtuu juuri ja juuri. Tietysti jos ei ole saunaa, niin voi olla vähän tilavampi.

Mielestäni tällainen asunto ei ole kaksio, vaan 1 h + tupakeittiö. Käytännössä olohuoneessa on hella, jääkaappi ja keittiötasot yhdellä seinällä.

Kuvailemasi asunto on hellahuone makuualkovilla. On palattu 1950-luvulle, vain vähän modernimpaa sisustus mutta periaate aivan sama: hellahuone ja makuualkovi. 

Vierailija
5/13 |
24.12.2022 |
Näytä aiemmat lainaukset

Ap, tuo kuulostaa ihan hyvältä mitoitukselta. Toki käytettävyyteen ja sisustettavuuteen vaikuttaa se, minkämuotoinen tuo tila on.

Vierailija
6/13 |
24.12.2022 |
Näytä aiemmat lainaukset

Vierailija kirjoitti:

Meillä on juuri tuollainen aso-asunto, 46,5 neliötä. Olohuone on ihan riittävän tilava, mutta makuuhuone on niin pieni, että parisänky mahtuu juuri ja juuri. Tietysti jos ei ole saunaa, niin voi olla vähän tilavampi.

Mielestäni tällainen asunto ei ole kaksio, vaan 1 h + tupakeittiö. Käytännössä olohuoneessa on hella, jääkaappi ja keittiötasot yhdellä seinällä.

Mulla hiukka isompi mutta saunallinen kaksio. Omassa pohjaratkaisu on mielestäni hyvä: keittiö ja eteinen ovat tavallaan samaa tilaa, olohuone niiden takana omana alueenaan, eli avokeittiö mutta kuitenkin eri tilaa. En tykkää noista "keittiö olkkarin seinällä" ratkaisuista.

Sisältö jatkuu mainoksen alla
Vierailija
7/13 |
24.12.2022 |
Näytä aiemmat lainaukset

Onko siinä sitten iso makkari ja kylppäri sekä eteinen,  jos niille jää 21 neliötä. 

Vierailija
8/13 |
24.12.2022 |
Näytä aiemmat lainaukset

Vierailija kirjoitti:

Ap, tuo kuulostaa ihan hyvältä mitoitukselta. Toki käytettävyyteen ja sisustettavuuteen vaikuttaa se, minkämuotoinen tuo tila on.

No ei todellakaan kuulosta. Saman verran tilaa sitten makuuhuoneelle ja kylpyhuoneelle? Mieluummin isompi keittiö ja olkkari. 

Sisältö jatkuu mainoksen alla
Vierailija
9/13 |
24.12.2022 |
Näytä aiemmat lainaukset

Vierailija kirjoitti:

Vierailija kirjoitti:

Meillä on juuri tuollainen aso-asunto, 46,5 neliötä. Olohuone on ihan riittävän tilava, mutta makuuhuone on niin pieni, että parisänky mahtuu juuri ja juuri. Tietysti jos ei ole saunaa, niin voi olla vähän tilavampi.

Mielestäni tällainen asunto ei ole kaksio, vaan 1 h + tupakeittiö. Käytännössä olohuoneessa on hella, jääkaappi ja keittiötasot yhdellä seinällä.

Kuvailemasi asunto on hellahuone makuualkovilla. On palattu 1950-luvulle, vain vähän modernimpaa sisustus mutta periaate aivan sama: hellahuone ja makuualkovi. 

Minulla on vähän toinen käsitys alkovista. Tämä makuuhuone on kuitenkin huone, jossa on yhdellä seinällä ovi, toisella vaatekaapit ja kolmannella ikkuna.

Vierailija
10/13 |
24.12.2022 |
Näytä aiemmat lainaukset

Laita pohjapiirros. Siitä helpompi arvioida kalustettavuutta.

Sisältö jatkuu mainoksen alla
Vierailija
11/13 |
24.12.2022 |
Näytä aiemmat lainaukset

Vierailija kirjoitti:

Vierailija kirjoitti:

Vierailija kirjoitti:

Meillä on juuri tuollainen aso-asunto, 46,5 neliötä. Olohuone on ihan riittävän tilava, mutta makuuhuone on niin pieni, että parisänky mahtuu juuri ja juuri. Tietysti jos ei ole saunaa, niin voi olla vähän tilavampi.

Mielestäni tällainen asunto ei ole kaksio, vaan 1 h + tupakeittiö. Käytännössä olohuoneessa on hella, jääkaappi ja keittiötasot yhdellä seinällä.

Kuvailemasi asunto on hellahuone makuualkovilla. On palattu 1950-luvulle, vain vähän modernimpaa sisustus mutta periaate aivan sama: hellahuone ja makuualkovi. 

Minulla on vähän toinen käsitys alkovista. Tämä makuuhuone on kuitenkin huone, jossa on yhdellä seinällä ovi, toisella vaatekaapit ja kolmannella ikkuna.

Kirjoitit kumminkin, että parisänky tuskin mahtuu sinne "huoneeseen", onko "huone" edes 10 qm?

Suomalainen parisänky on kuinka leveä, 140 vai 160 cm ? Kannattaakin hankkia heteka jos ei parisänky meinaa mahtua. 

Vierailija
12/13 |
24.12.2022 |
Näytä aiemmat lainaukset

Kyllä, noissa neliöissä mahtuu asumaan peruaatteessa kaksi henkilöä.

Yleensä ihmiset viettävät aikaansa muutaman neliön alueella, siitä on tehty ihan tutkimus, mutta en löydä sitä tähän hätään. Muistelen sen olevan 4-5m2 + ruuanlaitto, muut neliöt kotona käytetään huonekalujen ja tavaroiden säilyttämiseen, jotka ovat vähällä käytöllä, oli kodissa vaikka 200m2.

Sinä voit testata nykyisessä asunnossa, miten paljon tarvitset tilaa ja neliöitä, kun oleskelet kotona.

Sisältö jatkuu mainoksen alla
Vierailija
13/13 |
24.12.2022 |
Näytä aiemmat lainaukset

Vierailija kirjoitti:

Laita pohjapiirros. Siitä helpompi arvioida kalustettavuutta.

https://d2ue5ppt0wsjaa.cloudfront.net/1200x800,fit/vuokraovimedia/image…

Kirjoita seuraavat numerot peräkkäin: kuusi neljä seitsemän